Property Details
A charming three-bedroom detached cottage in the moorland hamlet of Tremar, full of character and potential. With no onward chain, a private garden, garage, and easy access to Liskeard, this is a rare opportunity to create a dream home in a sought-after location.
THE PROPERTY
Nestled in the peaceful moorland hamlet of Tremar, this charming three-bedroom detached cottage is brimming with character and potential. Offered with no onward chain, it presents a rare opportunity to create a truly special home in a sought-after location.
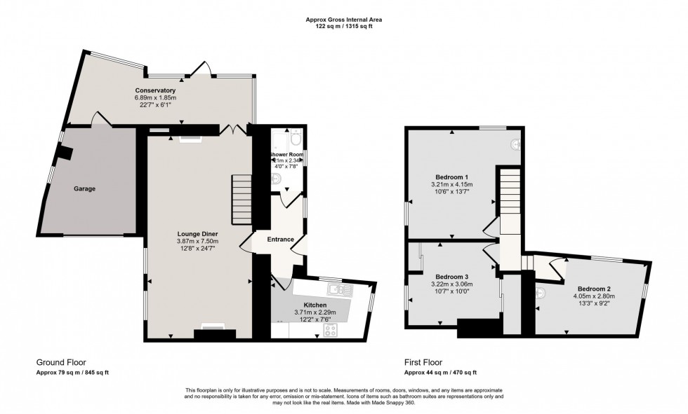
Inside, the cottage features a spacious lounge/diner with exposed beams and a welcoming multi-fuel stove, perfect for cosy evenings or entertaining guests, leads into a bright sun room overlooking the garden. The cottage-style kitchen offers generous storage and workspace, while a ground floor shower room adds practicality and comfort.
Upstairs, three light-filled bedrooms each offer their own unique charm, with dual-aspect windows and original features that reflect the property's heritage. While modernisation is needed, the layout and character provide a wonderful canvas for personalisation.
THE OUTSIDE
The property enjoys a well-established, enclosed garden which is a peaceful retreat with mature borders, a small wildlife pond, and a patio area ideal for summer dining or morning coffee.
The garage sits to the side of the home and includes power and lighting, with an internal door connecting to the sun room. A further garden shed with power adds flexibility for storage, hobbies, or workshop use.
THE LOCATION
Tremar offers the perfect blend of rural tranquillity and town convenience. Located just three miles north of Liskeard, residents enjoy easy access to supermarkets, schools, cafés, and a mainline railway station with links to Plymouth and the coast at Looe.
Surrounded by stunning countryside, the area boasts a nearby National Nature Reserve, Siblyback Activity Centre, and several historic megalithic monuments within walking distance.
Locally renowned pubs, The Market Inn in St Cleer and The Crow’s Nest in Darite, are a country walk away.
Whether you’re seeking a peaceful retreat, a renovation project, or a character-filled home close to amenities, this delightful cottage ticks all the boxes.
FAQs
Services - Mains electric, water and drainage.
Vendors plans – Chain free
Tenure - Freehold
Garden aspect - South
Council Tax Band - D
Agents Note - We would recommend reviewing the Key Facts for Buyers link before viewing or purchasing this property which can be found at the end of this property listing or on our website
DIRECTIONS
Satnav Reference - PL14 5HG
What3words - ///denoting.demand.variation













